文章转载自“压缩机网”微信公众号,如有侵权请联系删除!
2024年7月17日12时56分许,位于江阴市徐霞客镇环镇北路7号的江阴市恒园彩纤有限公司发生一起闪爆事故,造成5人死亡,11人受伤,直接经济损失1528.3万元。
综合现场勘察、调查取证、技术分析和模拟实验,排除人为放火、故意破坏和突发灾害等因素,认定事故直接原因:恒园公司员工盲目关闭真空泵和气相阀,混料提纯釜内物料持续加热分解产生有机废气,员工发现有机废气泄漏后现场未正确处置,内气体积聚达到爆炸条件,遇点火能量发生闪爆,釜本体与端盖分离移位,与釜体连接的导热油管线断裂,大量高温导热油喷溅引发火灾,爆炸冲击波和燃烧波迅速扩张造成众员伤亡。

生产工艺及技术改造情况
1、纺丝生产工艺:恒园公司主要使用原辅材料为再生聚酯PET泡料、瓶片料等。原料经料仓进入转鼓烘干,后投至螺杆挤出机加热熔化后挤出,通过真空提纯系统增粘后,由熔体输送泵注入纺丝箱进行纺丝。
2、技术改造情况:2018年7月,无染彩公司与普立特公司签订“日产60吨PET增粘工程”合同,组织事故厂房2号纺丝生产线技术改造,生产线中增加真空提纯系统,2019年3月改造完成并投入使用。2019年5月,无染彩公司将真空提纯系统产权转移给第一化纤公司。2020年9月,技术改造项目通过竣工环境保护验收。技术改造项目未开展建设项目安全设施“三同时”。
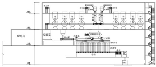
3、真空提纯工艺:真空提纯系统主要由真空泵组、冷凝器混料提纯釜、导热油加热及控制系统等组成,冷凝器与混料提纯釜之间设有两个气相阀,如图4所示。混料提纯釜夹套内的高温导热油将釜内PET原料加热至270-280℃,在负压环境下,PEI原料熔体发生均化混合、去除低分子物质,产生的有机废气经冷凝后排出,达到提纯增粘效果。

事故发生经过
2024年7月16日21时10分许,恒园公司纺丝生产线真空泵电机故障停机,真空泵岗位员工董昌华排除故障后重新启动南侧一组真空泵。因准备临时停产和检维修设备,厂长唐军随后又关闭了真空泵,为便于排料,中控系统岗位人员根据唐军要求将导热油温度设置为280℃,冷凝系统设备正常开启,但夜间未组织员工排料。
7月17日8时许,唐军组织召开会议,安排真空泵组组长张伟良对真空冷凝系统进行检修保养。9时许,恒园公司安排4名员工进行排料,约排料12-16托盘,釜内剩余原料约1.8吨11时50分,张伟良清理冷凝器,打开冷凝器人孔后,发现有白色气体冒出,随即关闭连接冷凝器的2个气相阀。
12 时许,多名员工向唐军反映冷凝器气相阀区域存在白色气体泄漏,并伴有刺鼻气味。
12时17分,唐军用打湿的石棉覆盖气相阀泄漏处。
12时56分29秒,监控画面显示,2号生产线混料提纯釜附近突然出现爆闪亮光并迅速增强,多处出现震动现象,燃烧波迅速扩张,随后画面消失。

人员伤亡情况
事故发生时,恒园公司现场有19名作业人员,事故造成2人受伤;永一公司现场有23名作业人员,事故造成4人受伤;吴盛公司现场有24名作业人员,事故造成4人死亡、2人受伤;吴艺公司现场有24名作业人员,事故造成1人死亡、3人受伤。
事故直接原因
综合现场勘察、调查取证、技术分析和模拟实验,排除人为放火、故意破坏和突发灾害等因素,认定事故直接原因:恒园公司员工盲目关闭真空泵和气相阀,混料提纯釜内物料持续加热分解产生有机废气,员工发现有机废气泄漏后现场未正确处置,釜内气体积聚达到爆炸条件,遇点火能量发生闪爆,釜本体与端盖分离移位,与釜体连接的导热油管线断裂,大量高温导热油喷溅引发火灾,爆炸冲击波和燃烧波迅速扩张造成人员伤亡。

有关单位和人员存在的主要问题
(一)事故相关企业
1、恒园公司:安全生产主体责任不落实,未制定纺丝生产线真空提纯系统岗位安全操作规程;未对真空提纯系统进行安全风险辨识和制定管控措施;未制定真空提纯系统现场处置方案;对真空提纯系统岗位员工安全教育培训不到位;真空提纯系统真空度不足报警后未处置,未及时有效消除事故隐患。
2、第一化纤公司:真空提纯系统技术改造未开展安全设施“三同时”,未及时发现并消除真空提纯系统安全设施缺失的事故隐患,将安全设施缺失的纺丝生产单元出租给恒园公司使用;安全生产统一、协调管理职责履行不到位,未向恒园公司提供真空提纯系统工艺操作手册,未告知真空提纯系统的安全生产要求 。
3、普立特公司:设计、制造和安装的真空提纯系统未设置紧急泄压排放装置1,不符合国家相关标准。
对有关单位和责任人的处理建议
(一)追究刑事责任的人员
1、唐军,恒园公司厂长。对事故发生负有直接责任,已被公安机关立案侦查并采取强制措施。
2、张伟良,恒园公司真空泵组组长。对事故发生负有直接责任,建议移送司法机关立案侦查,追究刑事责任。
3、曾荧晓,恒园公司法定代表人,生产经营负责人。对事故发生负有责任,已被公安机关立案侦查并采取强制措施。
4、张强,恒园公司生产经营负责人。对事故发生负有责任:建议移送司法机关立案侦查,追究刑事责任。
5、李熊彪,2023年至2024年5月,担任第一化纤公司总经理,2024年5月至事故发生时,担任第一化纤公司办公室主任具体负责安全生产管理工作。对事故发生负有责任,已被公安机关立案侦查并采取强制措施。
6、徐华伟,2024年5月至事故发生时,担任第一化纤公司总经理。对事故发生负有责任,建议移送司法机关立案侦查,追究刑事责任。